
Bunte Lerninsel im

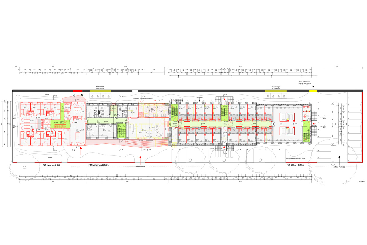
Wohnen, leben, lernen – das Studierenden-Wohnheim ist für unterschiedliche Bedürfnisse und Aufgaben ausgestattet. Wohncluster als WGs für bis zu sechs Personen und Einzelappartements mit Schlafempore lassen Raum für Individualität und Gemeinschaft. Das durchgehende Erdgeschoss ist mehr als eine räumliche Verbindung – es ist der architektonische Durchbruch zwischen Neubau, 1950er Jahre-Mittelbau und denkmalgeschütztem Altbau. Das Projekt ist zur Umsetzung in einem veränderten Rahmen in Überprüfung.
Lage
Mühlauhafen Mannheim
Mischnutzung aus Industrie und Wohnen, angrenzend an den belebten, vielfältigen Stadtteil Jungbusch
Architektur
Bestandsgebäude altes Güteramt, erbaut 1880, und ehemaliges Ledigenwohnheim der Deutschen Bahn aus den 1950er Jahren
Teilweise stehen die Gebäude unter Denkmalschutz
Planung
Ein Wohnheim für 175 Studierende, das aus drei Häusern besteht, davon zwei Bestandsgebäude und ein Neubau
Durchbrüche der Häuser verbinden das Erdgeschoss; im Obergeschoss sind Räume für Rückzug und Ruhe.
Anundo Mehrwert
Multifunktionales Zuhause für Studierende schaffen: Austausch, Begegnung, Lernen, das tägliche Leben und das Bedürfnis nach Rückzug und Ruhe verbinden.
Gemeinschaftliches Wohnen in kleinen Wohngemeinschaften sowie erschwinglichen, attraktiven Wohnraum für Studierende anbieten, an dem auch in Mannheim Mangel herrscht.
Lage und Architektur
Unterschiedliche Baujahre verbinden
Das Baufeld befindet sich im Mischgebiet aus industrieller Nutzung und Wohnen im Mühlauhafen in Mannheim am Standort des alten Güteramts. Bis 1920 wurde das Gelände als Güterhafen genutzt, heute befindet sich hier ein Container-Terminal. In den letzten Jahrzehnten fehlte dem Gebäudekomplex eine stimmige Nutzung; das Grundstück daneben ist unbebaut. Die Bestandsgebäude sind der Altbau, das alte Güteramt, erbaut im Jahr 1880, und das ehemalige Ledigenwohnheim der Deutschen Bahn als Mittelbau, der aus den 1950er Jahren stammt. Teilweise stehen die Gebäude unter Denkmalschutz.
Planung
Wohnheim und Gemeinschaftsort
Am Standort soll ein Wohnheim für 175 Studierende entstehen, das in Appartements und WG-Wohnungen Platz bietet. Eine Mauer soll die alten und das neue Gebäude umfassen und den Rahmen zum Grundstück bilden. So werden die Häuser, die jedes ihren eigenen Charakter haben, zusammengehalten und verbunden.
Die innere Erschließung durchzieht die Gebäudeteile über unterschiedliche Höhenniveaus, was sie zusammenstrickt und funktional verzahnt. Im Erdgeschoss sind Zonen zur gemeinschaftlichen Nutzung verteilt – wie Arbeitsräume, Gemeinschaftsküche, Lounge, Café, Sportbereich und Freibereich: eine neue, bunte Adresse mit zeitgemäßen Wohnformen für Studierende.
Das Obergeschoss ist der private, nur für die hier lebenden Studierenden offene Raum mit Gemeinschaftsflächen.
















